£259,950 - New Instruction


A great opportunity to buy a spacious first floor maisonette on a small development in one of the University areas most desirable roads, just over one mile to the East of Reading. The property is well presented with a very long lease, modest management fees, no ground rent, residents parking , mature communal gardens as well as a garage. Accommodation includes a good size landing with useful loft space, lounge/diner, well fitted kitchen, two good size bedrooms and a 4 pc bathroom. With gas central heating and double glazing an early viewing is strongly recommended.

Nearby, The University of Reading's walks and lakes offer a rare combination: the calm of nature just moments from urban living. Whether enjoyed as a daily route, a study break or a weekend wander, these outdoor spaces make the campus a truly stand out location for locals.

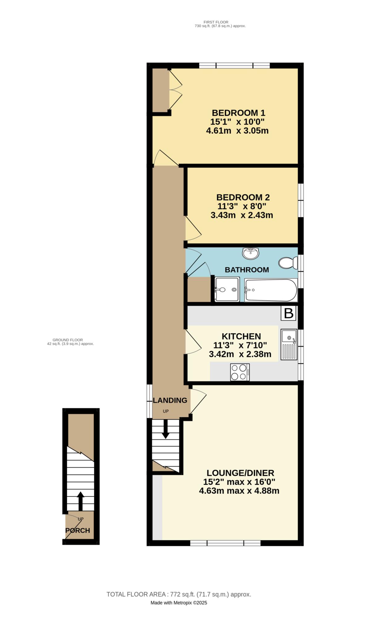
Double glazed front door to,

PORCH:
Cupboard housing electric meter & fusebox, staircase to first floor.

FIRST FLOOR

LANDING:
Double glazed window, access to loft space, radiator, thermostat, doors to all rooms.

LOUNGE/DINER:
A good size `L` shaped room with book shelves, bamboo floor, double glazed window, 2 radiators.

KITCHEN:
Well fitted with a good range of eye and base level drawer and cupboard units, single drainer stainless steel sink with mixer tap, electric hob, stainless steel extractor hood, electric oven, appliance space and plumbing for dishwasher and washing machine, appliance space for free standing fridge freezer, gas fired boiler, laminate floor, part tiled walls, double glazed window.

BEDROOM 1:
Double wardrobe, double glazed window, radiator, picture rails.

BEDROOM 2:
Double glazed window, radiator, picture rails.

BATHROOM:
A 4pc suite comprising panel enclosed bath, separate shower cubicle, wash hand basin, low level WC, part tiled walls, airing cupboard, double glazed window, heated towel rail.

OUTSIDE

GARDENS:
The property has a parking area to the front, mature communal rear garden and a further parking area to the rear where the garage will be found.

GARAGE:
Up and over door.

MISCELLANEOUS:
The property has a remaining lease that is over 900 years, there is no ground rent charge and the service charge is £80pcm.



Council Tax
Reading Borough Council, Band C

Service Charge
£80.00 Monthly

Lease Length
900 Years

Notice
Please note we have not tested any apparatus, fixtures, fittings, or services. Purchasers must undertake their own investigation into the working order of these items. All measurements are approximate and photographs provided for guidance only.

Floor Plan
EER Chart

The Energy-Efficiency Rating is a measure of a home's overall efficiency. The higher the rating, the more energy-efficient the home is, and the lower the fuel bills are likely to be.

Utility Supply Type
Electric Mains Supply
Gas Mains Supply
Water Mains Supply
Sewerage Mains Supply
Broadband Unknown
Telephone Unknown

Other Items Description
Heating Gas Central Heating
Garden/Outside Space No
Parking Yes
Garage Yes

Broadband Coverage Highest Available Download Speed Highest Available Upload Speed
Standard 17 Mbps 1 Mbps
Superfast 80 Mbps 20 Mbps
Ultrafast 1800 Mbps 1000 Mbps

Mobile Coverage Indoor Voice Indoor Data Outdoor Voice Outdoor Data
EE Likely Likely Enhanced Enhanced
Three Likely Likely Enhanced Enhanced
O2 Enhanced Likely Enhanced Enhanced
Vodafone Likely Likely Enhanced Enhanced

Broadband and Mobile coverage information supplied by Ofcom.


marker icon